For a better experience, we recommend you to orientate your device






































































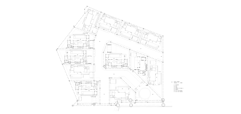
Lavish Estates is a high-end luxury residential development located in the prime area of Chalong, Phuket. The project has been meticulously designed
in every dimension—from architectural character and master planning to the careful selection of premium materials—to perfectly meet the lifestyle needs of
discerning residents.
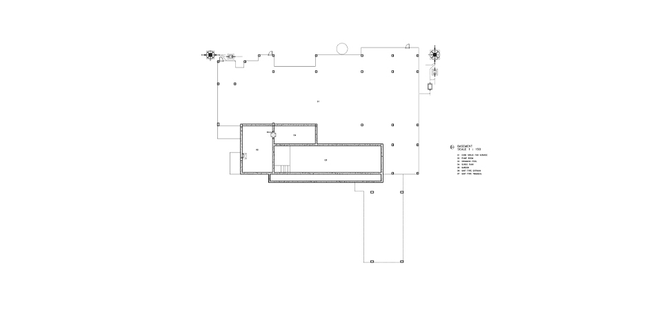
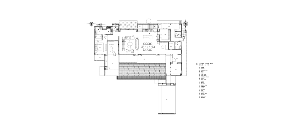
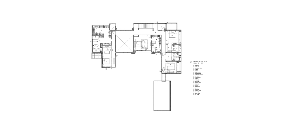
Comprising only 13 exclusive villas, the development ensures the utmost privacy amid a tranquil and lush environment. Each home is a two-story private
pool villa designed in a Classic Modern style that harmoniously blends timeless elegance with contemporary simplicity. The refined proportions and
simplified detailing create a sense of sophistication and understated luxury in every perspective.
The interiors are thoughtfully planned to emphasize functionality and comfort, offering generous and flexible living spaces. Each villa features
3–5 bedrooms, en-suite bathrooms, both European and Asian kitchens, ample storage areas, and an extended pool and terrace that invite relaxation
at any time of day.
Guided by the Green Living Oasis concept, Lavish Estates integrates luxury living with nature through curated landscaping and spacious internal roads,
creating a serene and welcoming neighborhood surrounded by greenery.
Architect: Narucha Kuwattanapasiri, Kunatip Thonglueang, Thammanoon Phansaard
Interior Architect: Krittika Studio
Landscape Architect: Landscape Tectonix Limited
Lighting Architect: -
Structural Engineer: Pongsakorn Soontranont
System Engineer: Sutida Sirimungkla, Tanakorn Eaksongkiat, Rawiwan Tiwawong
Contractor: Elite Manor Co., Ltd.
Photographs: THANAWATCHU Creative Production Co., Ltd.






































































Lavish Estates is a high-end luxury residential development located in the prime area of Chalong, Phuket. The project has been meticulously designed
in every dimension—from architectural character and master planning to the careful selection of premium materials—to perfectly meet the lifestyle needs of
discerning residents.
Comprising only 13 exclusive villas, the development ensures the utmost privacy amid a tranquil and lush environment. Each home is a two-story private
pool villa designed in a Classic Modern style that harmoniously blends timeless elegance with contemporary simplicity. The refined proportions and
simplified detailing create a sense of sophistication and understated luxury in every perspective.
The interiors are thoughtfully planned to emphasize functionality and comfort, offering generous and flexible living spaces. Each villa features
3–5 bedrooms, en-suite bathrooms, both European and Asian kitchens, ample storage areas, and an extended pool and terrace that invite relaxation
at any time of day.
Guided by the Green Living Oasis concept, Lavish Estates integrates luxury living with nature through curated landscaping and spacious internal roads,
creating a serene and welcoming neighborhood surrounded by greenery.
Architect: Narucha Kuwattanapasiri, Kunatip Thonglueang, Thammanoon Phansaard
Interior Architect: Krittika Studio
Landscape Architect: Landscape Tectonix Limited
Lighting Architect: -
Structural Engineer: Pongsakorn Soontranont
System Engineer: Sutida Sirimungkla, Tanakorn Eaksongkiat, Rawiwan Tiwawong
Contractor: Elite Manor Co., Ltd.
Photographs: THANAWATCHU Creative Production Co., Ltd.






































































Lavish Estates is a high-end luxury residential development located in the prime area of Chalong, Phuket. The project has been meticulously designed
in every dimension—from architectural character and master planning to the careful selection of premium materials—to perfectly meet the lifestyle needs of
discerning residents.
Comprising only 13 exclusive villas, the development ensures the utmost privacy amid a tranquil and lush environment. Each home is a two-story private
pool villa designed in a Classic Modern style that harmoniously blends timeless elegance with contemporary simplicity. The refined proportions and
simplified detailing create a sense of sophistication and understated luxury in every perspective.
The interiors are thoughtfully planned to emphasize functionality and comfort, offering generous and flexible living spaces. Each villa features
3–5 bedrooms, en-suite bathrooms, both European and Asian kitchens, ample storage areas, and an extended pool and terrace that invite relaxation
at any time of day.
Guided by the Green Living Oasis concept, Lavish Estates integrates luxury living with nature through curated landscaping and spacious internal roads,
creating a serene and welcoming neighborhood surrounded by greenery.
Architect: Narucha Kuwattanapasiri, Kunatip Thonglueang, Thammanoon Phansaard
Interior Architect: Krittika Studio
Landscape Architect: Landscape Tectonix Limited
Lighting Architect: -
Structural Engineer: Pongsakorn Soontranont
System Engineer: Sutida Sirimungkla, Tanakorn Eaksongkiat, Rawiwan Tiwawong
Contractor: Elite Manor Co., Ltd.
Photographs: THANAWATCHU Creative Production Co., Ltd.
Lavish Estates is a high-end luxury residential development located in the prime area of Chalong, Phuket. The project has been meticulously designed
in every dimension—from architectural character and master planning to the careful selection of premium materials—to perfectly meet the lifestyle needs of
discerning residents.
Comprising only 13 exclusive villas, the development ensures the utmost privacy amid a tranquil and lush environment. Each home is a two-story private
pool villa designed in a Classic Modern style that harmoniously blends timeless elegance with contemporary simplicity. The refined proportions and
simplified detailing create a sense of sophistication and understated luxury in every perspective.
The interiors are thoughtfully planned to emphasize functionality and comfort, offering generous and flexible living spaces. Each villa features
3–5 bedrooms, en-suite bathrooms, both European and Asian kitchens, ample storage areas, and an extended pool and terrace that invite relaxation
at any time of day.
Guided by the Green Living Oasis concept, Lavish Estates integrates luxury living with nature through curated landscaping and spacious internal roads,
creating a serene and welcoming neighborhood surrounded by greenery.
Architect: Narucha Kuwattanapasiri, Kunatip Thonglueang, Thammanoon Phansaard
Interior Architect: Krittika Studio
Landscape Architect: Landscape Tectonix Limited
Lighting Architect: -
Structural Engineer: Pongsakorn Soontranont
System Engineer: Sutida Sirimungkla, Tanakorn Eaksongkiat, Rawiwan Tiwawong
Contractor: Elite Manor Co., Ltd.
Photographs: THANAWATCHU Creative Production Co., Ltd.




