For a better experience, we recommend you to orientate your device
























































































































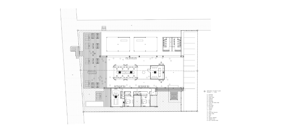
Atthayasai is a riverside project designed with two complementary functions that seamlessly connect with one another. The first component is a semi-hotel
accommodation, featuring two-bedroom units that immerse guests in the authentic atmosphere of the canal. From their rooms, visitors can observe the daily
rhythms of local life, where the waterway remains a vital part of transportation and livelihood. To further enrich this experience, the project offers curated
one-day boat trips, allowing guests to journey along the canal, witness traditional ways of life, and engage with the cultural heritage that has been passed
down through generations.
The second component is a dedicated outdoor event space, ideal for hosting celebrations and weddings amidst a lush garden setting along the canal.
The two functions are designed to work hand in hand—for instance, during weddings, the accommodation can serve as the bride and groom’s suite or as
private rooms for family members and close guests. This integration makes Atthayasai not only a place to stay but also a venue for creating memorable
life events.
Architecturally, the project strives to dissolve into its natural context. The buildings are designed as transparent glass boxes that minimize visual impact
and allow the surrounding landscape to take center stage. Two prominent brick walls act as spatial dividers, their earthy tones blending harmoniously with
the site. The bricks are carefully arranged in a gradually twisting pattern, evoking the rippling flow of water as it enters the project—an architectural metaphor
for the community’s intimate relationship with the canal.
Ultimately, Atthayasai is more than just accommodation or an event venue. It is a holistic riverside destination that combines cultural tourism, relaxation, and
life’s most meaningful celebrations, all embraced by the harmony of nature and architecture.
Architect: Narucha Kuwattanapasiri, Chutimont Chanok-ovat, Nat Saligupta, Thammanoon Phansaard
Interior Architect: Narucha Kuwattanapasiri, Chutimont Chanok-ovat
Landscape Architect: Summersnow HomeandGarden
Lighting Architect: -
Structural Engineer: Pongsakorn Soontranont
System Engineer: Sutida Sirimungkla, Tanakorn Eaksongkiat, Rawiwan Tiwawong
Contractor: -
Photographs: Soopakorn Srisakul
























































































































Atthayasai is a riverside project designed with two complementary functions that seamlessly connect with one another. The first component is a semi-hotel
accommodation, featuring two-bedroom units that immerse guests in the authentic atmosphere of the canal. From their rooms, visitors can observe the daily
rhythms of local life, where the waterway remains a vital part of transportation and livelihood. To further enrich this experience, the project offers curated
one-day boat trips, allowing guests to journey along the canal, witness traditional ways of life, and engage with the cultural heritage that has been passed
down through generations.
The second component is a dedicated outdoor event space, ideal for hosting celebrations and weddings amidst a lush garden setting along the canal.
The two functions are designed to work hand in hand—for instance, during weddings, the accommodation can serve as the bride and groom’s suite or as
private rooms for family members and close guests. This integration makes Atthayasai not only a place to stay but also a venue for creating memorable
life events.
Architecturally, the project strives to dissolve into its natural context. The buildings are designed as transparent glass boxes that minimize visual impact
and allow the surrounding landscape to take center stage. Two prominent brick walls act as spatial dividers, their earthy tones blending harmoniously with
the site. The bricks are carefully arranged in a gradually twisting pattern, evoking the rippling flow of water as it enters the project—an architectural metaphor
for the community’s intimate relationship with the canal.
Ultimately, Atthayasai is more than just accommodation or an event venue. It is a holistic riverside destination that combines cultural tourism, relaxation, and
life’s most meaningful celebrations, all embraced by the harmony of nature and architecture.
Architect: Narucha Kuwattanapasiri, Chutimont Chanok-ovat, Nat Saligupta, Thammanoon Phansaard
Interior Architect: Narucha Kuwattanapasiri, Chutimont Chanok-ovat
Landscape Architect: Summersnow HomeandGarden
Lighting Architect: -
Structural Engineer: Pongsakorn Soontranont
System Engineer: Sutida Sirimungkla, Tanakorn Eaksongkiat, Rawiwan Tiwawong
Contractor: -
Photographs: Soopakorn Srisakul
























































































































Atthayasai is a riverside project designed with two complementary functions that seamlessly connect with one another. The first component is a semi-hotel
accommodation, featuring two-bedroom units that immerse guests in the authentic atmosphere of the canal. From their rooms, visitors can observe the daily
rhythms of local life, where the waterway remains a vital part of transportation and livelihood. To further enrich this experience, the project offers curated
one-day boat trips, allowing guests to journey along the canal, witness traditional ways of life, and engage with the cultural heritage that has been passed
down through generations.
The second component is a dedicated outdoor event space, ideal for hosting celebrations and weddings amidst a lush garden setting along the canal.
The two functions are designed to work hand in hand—for instance, during weddings, the accommodation can serve as the bride and groom’s suite or as
private rooms for family members and close guests. This integration makes Atthayasai not only a place to stay but also a venue for creating memorable
life events.
Architecturally, the project strives to dissolve into its natural context. The buildings are designed as transparent glass boxes that minimize visual impact
and allow the surrounding landscape to take center stage. Two prominent brick walls act as spatial dividers, their earthy tones blending harmoniously with
the site. The bricks are carefully arranged in a gradually twisting pattern, evoking the rippling flow of water as it enters the project—an architectural metaphor
for the community’s intimate relationship with the canal.
Ultimately, Atthayasai is more than just accommodation or an event venue. It is a holistic riverside destination that combines cultural tourism, relaxation, and
life’s most meaningful celebrations, all embraced by the harmony of nature and architecture.
Architect: Narucha Kuwattanapasiri, Chutimont Chanok-ovat, Nat Saligupta, Thammanoon Phansaard
Interior Architect: Narucha Kuwattanapasiri, Chutimont Chanok-ovat
Landscape Architect: Summersnow HomeandGarden
Lighting Architect: -
Structural Engineer: Pongsakorn Soontranont
System Engineer: Sutida Sirimungkla, Tanakorn Eaksongkiat, Rawiwan Tiwawong
Contractor: -
Photographs: Soopakorn Srisakul
Atthayasai is a riverside project designed with two complementary functions that seamlessly connect with one another. The first component is a semi-hotel
accommodation, featuring two-bedroom units that immerse guests in the authentic atmosphere of the canal. From their rooms, visitors can observe the daily
rhythms of local life, where the waterway remains a vital part of transportation and livelihood. To further enrich this experience, the project offers curated
one-day boat trips, allowing guests to journey along the canal, witness traditional ways of life, and engage with the cultural heritage that has been passed
down through generations.
The second component is a dedicated outdoor event space, ideal for hosting celebrations and weddings amidst a lush garden setting along the canal.
The two functions are designed to work hand in hand—for instance, during weddings, the accommodation can serve as the bride and groom’s suite or as
private rooms for family members and close guests. This integration makes Atthayasai not only a place to stay but also a venue for creating memorable
life events.
Architecturally, the project strives to dissolve into its natural context. The buildings are designed as transparent glass boxes that minimize visual impact
and allow the surrounding landscape to take center stage. Two prominent brick walls act as spatial dividers, their earthy tones blending harmoniously with
the site. The bricks are carefully arranged in a gradually twisting pattern, evoking the rippling flow of water as it enters the project—an architectural metaphor
for the community’s intimate relationship with the canal.
Ultimately, Atthayasai is more than just accommodation or an event venue. It is a holistic riverside destination that combines cultural tourism, relaxation, and
life’s most meaningful celebrations, all embraced by the harmony of nature and architecture.
Architect: Narucha Kuwattanapasiri, Chutimont Chanok-ovat, Nat Saligupta, Thammanoon Phansaard
Interior Architect: Narucha Kuwattanapasiri, Chutimont Chanok-ovat
Landscape Architect: Summersnow HomeandGarden
Lighting Architect: -
Structural Engineer: Pongsakorn Soontranont
System Engineer: Sutida Sirimungkla, Tanakorn Eaksongkiat, Rawiwan Tiwawong
Contractor: -
Photographs: Soopakorn Srisakul




